
32.50㎡ | 1 Floors | 1 Bedrooms | 1 Bathrooms
쉼을 위한 구조적 상상, RM 1.0

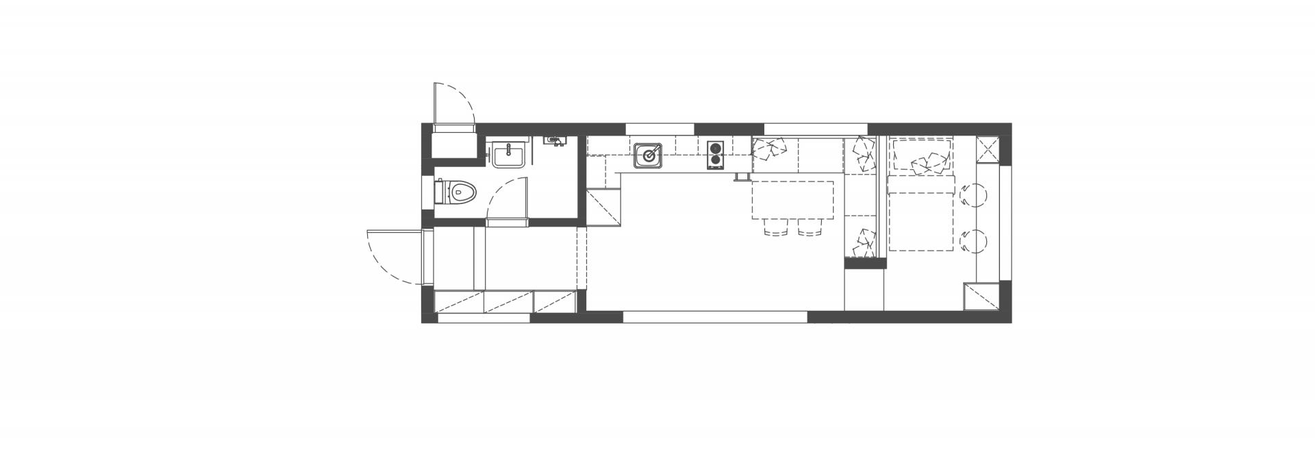
1F 32.50㎡

RM 1.0 | Real Modular
쉼을 위한 구조적 상상
건축은 때로 공간을 쌓는 일이 아니라, ‘덜어내는 일’로 시작합니다.
RM 1.0은 자이가이스트가 제안하는 ‘쉼’을 위한 공간입니다. 단일 모듈, 10평 규모의 이 초소형 주택은 단순한 주거 모델을 넘어, 농촌체류형쉼터 맞춤형으로 기획된 실용적이면서도 감각적인 상품입니다.
샘플하우스 안내
예약 문의 02)2154-4311

이 집을 가장 먼저 특징짓는 것은 엇각으로 설계된 지붕선입니다. 정형화된 모듈에 미묘한 비대칭을 부여한 이 지붕은 단조로운 단면을 피하면서 외관에 긴장감을 더하죠. 기능적으로는 빗물 배수에 유리하면서, 조형적으로는 집의 스케일감을 한층 더 키웁니다.

외벽은 마감재는 흰색 타일입니다. 금속이 주는 날카로운 질감 대신, 밝고 단단한 질감을 통해 RM 1.0은 자연과의 대비보다는 조화를 이루는데요. 밝은 외벽은 계절에 따라 표정을 달리하는 외피가 됩니다.



출입문은 정면이 아닌 측면에 자리해 있습니다. 이는 단순한 배치상의 이유라기보다, 시선의 방향을 정면에서 측면으로 이어지도록 만든 시도였습니다.

문을 열고 들어서면 하나의 선처럼 이어지는 내부 공간이 펼쳐집니다. 현관부터 주방과 거실까지 하나의 흐름으로 이어집니다.




조리 공간은 꼭 필요한 가전과 가구를 빌트인으로 구성하고, 거실과 하나로 이어지며 공간을 여유롭게 구성했죠. 이로써 실제 면적 이상으로 넓게 느껴지는 효과를 자아냅니다. 작은 창과 큰 창이 혼합된 입면 구성은 외부 풍경을 다양한 방식으로 실내로 끌어들이는 일등공신!



실내 깊숙한 곳, 마지막 공간은 침실입니다. 물리적인 벽보다 조도의 차이, 재료의 전환, 스킵플로어를 활용한 경계를 짓는 방식은 전체 평면이 가진 간결함을 해치지 않으면서도 사적인 리듬을 확보합니다. 좁지만 갇히지 않은, 닫혀 있으나 열려 있는 공간이죠.

욕실은 필요한 기능에 충실하게 구성되었습니다. 1자 형식의 욕실은 전체 면적에 비해 넓은 공간감을 자랑합니다. 환기와 청결, 조도의 균형이 반영된 마감과 설비는 이 공간이 단순한 ‘작은 쉼터’를 넘어, 완결된 생활 공간으로 작동함을 보여줍니다.


RM 1.0은 10평이라는 제한된 규모 안에 주거의 기본 기능을 오롯이 담고 있습니다. 그러나 집의 기능이 구현하고 있는 것은 단순한 ‘효율’이 아니라 ‘거주의 리듬’에 대한 존중입니다.


누군가에게는 주말의 쉼터이고, 누군가에게는 일상의 공간이 될 RM 1.0. 이 집은 머무는 시간보다, 머무는 방식에 관해 질문합니다. 그 질문 앞에서 RM 1.0이 건네는 대답을 확인해보세요.


샘플하우스 안내
예약 문의 02)2154-4311
※ 본 이미지는 연출된 컷이며, 소재 및 기타 구조부는 설계 및 견적을 통해 확정됨.
※ 2층 이상의 층에는 소방관 진입창이 필요하며, 인허가나 대지 진입 형태에 따라 위치가 변경될 수 있음.
32.50㎡ | 1 Floors | 1 Bedrooms | 1 Bathrooms
쉼을 위한 구조적 상상, RM 1.0
1F 32.50㎡
RM 1.0 | Real Modular
쉼을 위한 구조적 상상
건축은 때로 공간을 쌓는 일이 아니라, ‘덜어내는 일’로 시작합니다.
RM 1.0은 자이가이스트가 제안하는 ‘쉼’을 위한 공간입니다. 단일 모듈, 10평 규모의 이 초소형 주택은 단순한 주거 모델을 넘어, 농촌체류형쉼터 맞춤형으로 기획된 실용적이면서도 감각적인 상품입니다.
샘플하우스 안내
예약 문의 02)2154-4311
이 집을 가장 먼저 특징짓는 것은 엇각으로 설계된 지붕선입니다. 정형화된 모듈에 미묘한 비대칭을 부여한 이 지붕은 단조로운 단면을 피하면서 외관에 긴장감을 더하죠. 기능적으로는 빗물 배수에 유리하면서, 조형적으로는 집의 스케일감을 한층 더 키웁니다.
외벽은 마감재는 흰색 타일입니다. 금속이 주는 날카로운 질감 대신, 밝고 단단한 질감을 통해 RM 1.0은 자연과의 대비보다는 조화를 이루는데요. 밝은 외벽은 계절에 따라 표정을 달리하는 외피가 됩니다.
출입문은 정면이 아닌 측면에 자리해 있습니다. 이는 단순한 배치상의 이유라기보다, 시선의 방향을 정면에서 측면으로 이어지도록 만든 시도였습니다.
문을 열고 들어서면 하나의 선처럼 이어지는 내부 공간이 펼쳐집니다. 현관부터 주방과 거실까지 하나의 흐름으로 이어집니다.
조리 공간은 꼭 필요한 가전과 가구를 빌트인으로 구성하고, 거실과 하나로 이어지며 공간을 여유롭게 구성했죠. 이로써 실제 면적 이상으로 넓게 느껴지는 효과를 자아냅니다. 작은 창과 큰 창이 혼합된 입면 구성은 외부 풍경을 다양한 방식으로 실내로 끌어들이는 일등공신!
실내 깊숙한 곳, 마지막 공간은 침실입니다. 물리적인 벽보다 조도의 차이, 재료의 전환, 스킵플로어를 활용한 경계를 짓는 방식은 전체 평면이 가진 간결함을 해치지 않으면서도 사적인 리듬을 확보합니다. 좁지만 갇히지 않은, 닫혀 있으나 열려 있는 공간이죠.
욕실은 필요한 기능에 충실하게 구성되었습니다. 1자 형식의 욕실은 전체 면적에 비해 넓은 공간감을 자랑합니다. 환기와 청결, 조도의 균형이 반영된 마감과 설비는 이 공간이 단순한 ‘작은 쉼터’를 넘어, 완결된 생활 공간으로 작동함을 보여줍니다.

RM 1.0은 10평이라는 제한된 규모 안에 주거의 기본 기능을 오롯이 담고 있습니다. 그러나 집의 기능이 구현하고 있는 것은 단순한 ‘효율’이 아니라 ‘거주의 리듬’에 대한 존중입니다.
누군가에게는 주말의 쉼터이고, 누군가에게는 일상의 공간이 될 RM 1.0. 이 집은 머무는 시간보다, 머무는 방식에 관해 질문합니다. 그 질문 앞에서 RM 1.0이 건네는 대답을 확인해보세요.
샘플하우스 안내
예약 문의 02)2154-4311
※ 본 이미지는 연출된 컷이며, 소재 및 기타 구조부는 설계 및 견적을 통해 확정됨.
※ 2층 이상의 층에는 소방관 진입창이 필요하며, 인허가나 대지 진입 형태에 따라 위치가 변경될 수 있음.